Добро пожаловать на http://vipplan.ru

Випплан Азов - это тысячи проектов домов в нашем каталоге!

Вы всегда сможете найти для себя проект дома вашей мечты! Даже если этого не случилось, мы готовы в любую минуту предложить проект индивидуального дома.

Забыли пароль?
Вы еще не регистрировались?

Перейдите по ссылке ниже на страницу регистрации.

Регистрация...

Внимание!!!

В проектную документацию могут быть внесены изменения любой сложности, в соответствии в Вашими пожеланиями!

Полезные статьи

Закладка фундамента дома

Закладка фундамента является одним из первых и самых главных этапов строительства любого дома. Все здание опирается именно на эту часть конструкции. Поэтому главная функция фундамента заключается в том, чтобы нести на себе весь вес несущих стен и кровли, а значит предотвращать появление перекоса стен, проседание сооружения, что неизбежно приводит к образованию трещин в стенах здания и в фундаменте....

Свайно-ростверковый, буронабивной фундамент

Для объединения свай в общий фундамент устанавливают бетонные ростверки (железобетонные плиты). Устройство ростверка зависит от расположения, вида свай и конструкции здания. Ростверки могут быть монолитными, сборными или сборно-монолитными, также возможны безростверковые решения. ...

Проекты домов и коттеджей > Каталог проектов домов > Проект небольшого одноэтажного дома с гаражом Vg1008

Проект небольшого одноэтажного дома с гаражом Vg1008

Проект небольшого одноэтажного дома с гаражом
Зарегистрируйтесь

Проект № Vg1008


Техническое описание
Общая площадь: 105 м2
Жилая площадь: 53.09 м2
Высота здания: 7 м
Размеры дома: 11м×14м
Кол-во комнат: 4
Цокольный этаж: нет
Гараж: нет
Мансарда: нет

Kонструкция
Фундамент: Ленточный монолитный ж/б
Перекрытия: Деревянные балки
Материал стен: Керамоблок

Архитектурный раздел
Конструктивный раздел
Инженерный раздел
АР+КР - 48 000 (Со скидкой 20%)
АР+КР+ИР - 84 750 (Со скидкой 50%)
Проект индивидуального одноэтажного жилого дома с размерами 11.50 x 14.50 м. Наружная отделка здания – фасадная штукатурка. Отделка цоколя – клинкерная плитка. Фундамент – ленточный монолитный ж/б. Наружные стены запроектированы из керамических блоков и утеплителя с отделкой фасадной штукатуркой. Внутренние стены – из керамических блоков. Перегородки – из керамических блоков. Пол этажа – пол по грунту. Перекрытие чердачное – по деревянным балкам с использованием теплошумоизоляционных материалов. Крыша - многоскатная. Материал кровли – металлочерепица. Окна - металлопластиковые, выполненные по индивидуальному заказу.
Генплан застройки участка / Паспорт проекта 7000 руб / 10000 руб
Инженерный раздел (полный) 36750 руб (52500 руб)
Смета на строительство 26250 руб
Теплотехнический расчет материалов стен Бесплатно
Стоимость проекта со незначительнми изменениями 57350 руб
Стоимость проекта со средними изменениями* 65300 руб
Стоимость проекта со значительными изменениями** 67400 руб

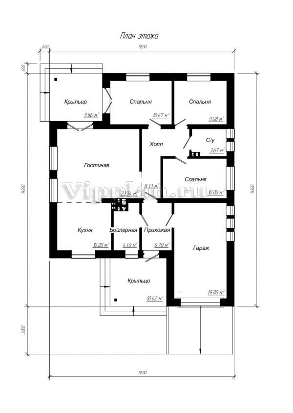
План первого этажа


Прихожая — 5,70 м2
Холл — 8,33 м2
Бойлерная — 4,45 м2
С/у — 3,67 м2
Гараж — 19,80 м2
Кухня — 10,20 м2
Гостиная — 23,34 м2
Спальня — 10,67 м2
Спальня — 9,08 м2
Спальня — 10 м2
Проект небольшого одноэтажного дома с гаражом Проект небольшого одноэтажного дома с гаражом Проект небольшого одноэтажного дома с гаражом Проект небольшого одноэтажного дома с гаражом

Модификации проектов

Внесение изменений и привязка к участку строительства

В любой из проектов от компании VIPplan - Азов по вашему желанию могут быть внесены изменения в материалы стен, материалы наружной отделки дома, а также будет произведена адаптация проекта под конкретный регион строительства (с учетом грунтов региона, геологических особенностей вашего участка и местных климатических условий) - БЕСПЛАТНО !!! (кроме проектов со скидкой и проектов наших партнеров).

Любой из проектов, размещенных на сайте azov.vipplan.ru мы можем выполнить из требуемых вам строительных материалов: ячеистый бетон (газобетон, пеноблок), керамоблок, кирпич, шлакоблок, бетонный блок, дерево (брус, клееный брус), каркасная технология (деревянный каркас, металлокаркас (ЛСТК)).

Фасад дома и его наружную отделку так же возможно выполнить с применением различных облицовочных материалов: структурной штукатурки, (с утеплителем и без), сайдингом (пластиковый или металлосайдинг), фиброплитами, кирпича.

 
6 Избранные
проекты

Доставка проектов по России: Москва (Московская область), Санкт-Петербург (Ленинградская область), Краснодар, Ростов-на-Дону, Ставрополь, Сочи, Волгоград, Новосибирск, Белгород, Брянск, Воронеж, Саратов, Хабаровск, Астрахань, Нальчик, Владикавказ, Екатеринбург, Тюмень, Самара, Нижний Новгород, Казань, Пермь, Уфа, Челябинск, Красноярск, Ханты-Мансийск, Иркутск, Курган, Оренбург, Омск, Томск, Барнаул, Новокузнецк, Кемерово, Абакан, Чита, Якутск, Южно-Сахалинск, Петропавловск-Камчатский и страны ближнего зарубежья: Белоруссия, Украина, Казахстан